미드타운 2B2B 룸메(여) 구합니다. > 렌트/부동산

본문 바로가기
사이트 내 전체검색

렌트/부동산

룸메 미드타운 2B2B 룸메(여) 구합니다.

페이지 정보

profile_image
작성자 soominLim
댓글 0건 조회 280회 작성일 25-07-28 13:01

본문

Farrington midtown 2B/2B 여성 룸메 구합니다. 

위치는 조지아텍 운전 5-7분 거리, 퍼블릭스, 타겟, 이케아 걸어서 10분내 거리입니다. 

8월 1일부터 입주할 수 있는 분 찾고있습니다. 계약은 내년 7월 24일에 끝납니다.

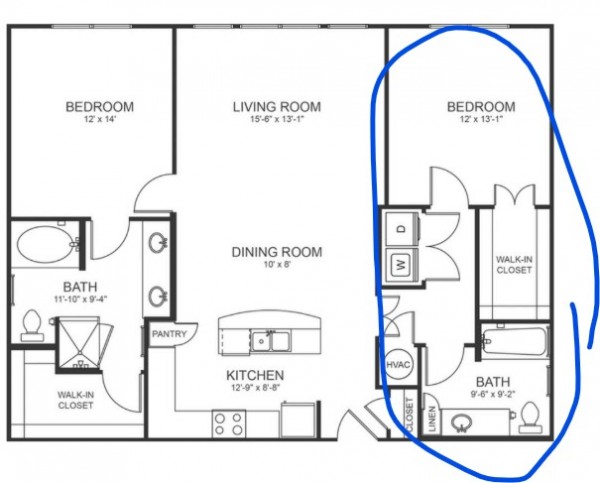
입주하게 될 방은 아래 파란색으로 표시된 방입니다.

 

렌트 비용은 $1123 유틸리티 제외한 금액입니다.

집 상태는 이번년도 7월 25일에 계약해서 그냥 새집 상태로 보시면 됩니다.

스페셜 오퍼로 9월, 1월 렌트비용은 무료입니다.  

담배, 애완동물, 파티 안됩니다. 친구 초대 + 친구에게 숙소제공은 가능합니다. 

부엌/거실 깨끗하게 유지할 수 있는분 찾습니다. 

안타깝게도 거실에 가구가 없습니다. 거실에 둘만한 가구 있으시면 들고오셔도 됩니다. 

관심있으시면 321 423 1048로 연락주세요. 

댓글목록

등록된 댓글이 없습니다.

Total 59,031건 1 페이지
렌트/부동산 목록
번호 제목 글쓴이 조회 날짜
공지 공지 webmaster 223 11-09
공지 공지 최고관리자 5557 06-16
59029 룸메 CyberSage 1 06:40
59028 룸메 안녕하세요77 19 12-18
59027 렌트 태그11 32 12-18
59026 렌트 lkjowih 15 12-18
59025 렌트 Suwaneeeeeeee 37 12-18
59024 렌트 Ceejai 30 12-18
59023 렌트 nutrition 41 12-18
59022 렌트 discodisco 17 12-18
59021 렌트 gogigogi 38 12-18
59020 렌트
호쉬톤 Exit 129 타운홈 렌트 N새글 첨부파일 링크첨부
AtlantaRealEsta… 30 12-18
59019 렌트 Jaypila 30 12-18
59018 룸메 MOONLIT 31 12-18
59017 렌트 날개옷천사 41 12-18

검색


모바일 버전으로 보기 상단으로

GTKSA
회장: 김준우 president@gtksa.net
홈페이지 오류 문의: webmaster@gtksa.net
채용 문의: vicepresident@gtksa.net
광고 문의: treasury@gtksa.net
Copyright © https://gtksa.net All rights reserved.