렌트 **둘루스 107번 Exit.[2분] Satellite 선상 사무실 방 렌트 합니다 (2 Available )
페이지 정보

본문
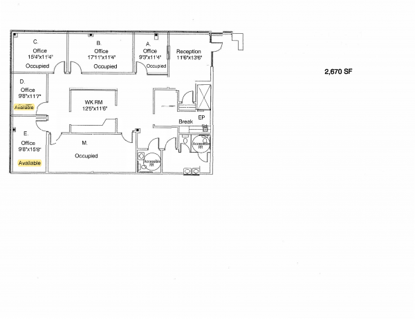
107번과 아주 가까운 Satellite 선상 2층 사무실방 렌트 합니다. (엘리베이터 있음) 2670 sq-ft
교통과 위치 정말 좋습니다 [Exit 107번 2분 108번 3분]
사진과 같이 방 2개 렌트 가능합니다 (방마다 창이 있습니다)
셔어할수 있는 워크룸, 브레이크룸, 그리고 남여 화장실 따로 있습니다
사무실 렌트 가격은 (와이파이 & 유틸 포함 입니다):
D: $600/month
E: $700/month 입니다
여유로운 주차 공간과 엘리베이터가 준비 되어 있어 무거운짐 옮기시기 편하십니다.
woorizipemails@gmail.com 또는 678 777 공2팔칠 로 이메일/문자 주시면 됩니다
- 이전글조지아텍 미드타운 5분거리 단기 룸렌트 25.08.09
- 다음글둘루스, 방 렌트 합니다 방 렌트 : $700 디파짓 필요 조용한 3년된 새 타운하우스이며, 마루바닥, 타운내 공용주차, 세탁, 건조, 주방, 인터넷 사용가능 학생, 직장인 선호, 잠만 주무실분 ** 먼 25.08.09
댓글목록
등록된 댓글이 없습니다.
